Bardon Industrial Estate – Unit 1
LOCATION: BARDON
RELATIONSHIP SINCE: 2022
Fit-out of the new office and warehouse space
01| PROJECT BACKGROUND
Following the construction of several new warehouse units located along Bardon Road, Coalville, Charles Kendall – a leading procurement, logistics and consultancy corporation – approached Company Image with an invitation to quote for the fit-out of the new office and warehouse space. Following the submission of a competitive tender, the contract was awarded to Company Image.
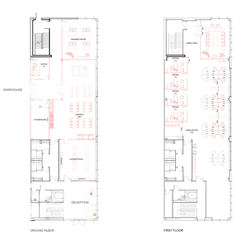
This project was to consist of a CAT-B ‘design-and-build’ fit-out of the existing office space which came with the new warehouse shell.
PROJECT
PARAMETERS
Working closely with our client under an early access agreement with the main contractor.
Internal Fit out completed to client’s deadline in readiness for moving date.
Coordination with the clients appointed data contractors and also the main contractor.
New internal partitioning and decorations to facilitate the clients’ requirements for meeting rooms, canteen, and office space.
02| BEFORE & AFTER

The existing space was a newly produced shell which required a full office fit-out. As a result, it was the work of the design and projects team at Company Image to bring the space to life – conceiving new designs and layouts, and implementing modern, stylish themes.
03| CICI SOLUTION
A ‘design-and-build’ project involves Company Image listening closely to the client’s requirements and implementing them in what we believe to be the most effective and practical way. In this case, the project involved creating partitions to separate the office space, both on the ground floor and first floor. It also involved flooring, furniture, electrical layouts, and A/C, as well as kitchen areas, breakout areas, and a canteen.
Furthermore, Company Image also installed a warehouse drivers’ office. As a result, the client received a functional space with a modern, stylish aesthetic which complemented their corporate identity.
SERVICES
PROVIDED
- Suspended Ceiling
- Solid 100mm Partitions
- New Office and Breakout Furniture
- TV Installation
- Decoration
- Flooring (Carpet and Resin)
- New Kitchen
- Window Blinds
- Internal Electric Works
- Air Conditioning
- Car Park Line Marking
- Industrial Clean
Client testimonial
“Company Image were successful in tendering for the full Turnkey package our new operations office in Coalville both Ground Floor Office and Canteen and First Floor Offices, Training Room, and Meeting Rooms.
Working with us to help refine our design and suggesting several improvements to our chosen layout that we had not considered such as flooring and ceiling finishes.
The whole process right from the initial consultation all the way through to design and installation was extremely professional.”
Tony Heard
Branch Manager
TRANSFORMING YOUR SPACE
Our Process
On our visit we will assess your existing space. We take the time to listen and understand your specific needs, helping us to set a tailored brief.
